当前位置: 首页 > 产品大全 > 创新与稳固 节能幕墙阳角单元板块连接结构的设计与安装实践

创新与稳固 节能幕墙阳角单元板块连接结构的设计与安装实践

创新与稳固 节能幕墙阳角单元板块连接结构的设计与安装实践

在现代建筑设计中,节能幕墙作为建筑外围护系统的重要组成部分,不仅承担着美学展示的功能,更在节能、环保、安全等方面发挥着关键作用。其中,阳角单元板块的连接结构设计,因其位于建筑外立面的转折突出部位,直接关系到幕墙的整体性能、安全稳定及施工效率,成为幕墙设计与安装中的技术难点与重点。本文将深入探讨一种高效、可靠的节能幕墙阳角单元板块连接结构,并阐述其在设计与安装中的关键考量。

一、 连接结构设计的核心原则

一种优秀的阳角单元板块连接结构,应立足于以下几个核心原则:

  1. 结构安全性与承载力:阳角部位受力复杂,需承受风荷载、地震作用、自重以及温度变形等多重应力。连接结构必须具备足够的强度、刚度和稳定性,确保在各种极限工况下不发生破坏或过大变形。
  2. 密封性能与节能保障:连接节点是气密性、水密性的薄弱环节。设计必须采用多道密封措施(如胶条密封、密封胶密封),形成有效的等压腔和排水通道,杜绝渗漏,并保证隔热断桥的连续性,以维持幕墙整体的保温隔热性能。
  3. 三维调节与误差吸收:考虑到工厂加工、现场安装的尺寸偏差以及建筑结构的施工误差,连接结构应具备在三维方向(X、Y、Z轴)上进行微调的能力,实现精准定位与平顺对接。
  4. 安装便捷性与可维护性:设计应简化现场安装工序,减少高空作业难度和时间,通常采用“挂接”或“插接”为主的机械连接方式。需为未来的检查、维修或更换预留操作空间和可行性。
  5. 美观协调性:连接节点应尽可能隐蔽、简洁,不影响幕墙外观的整体性与线条流畅感。

二、 一种典型的连接结构方案解析

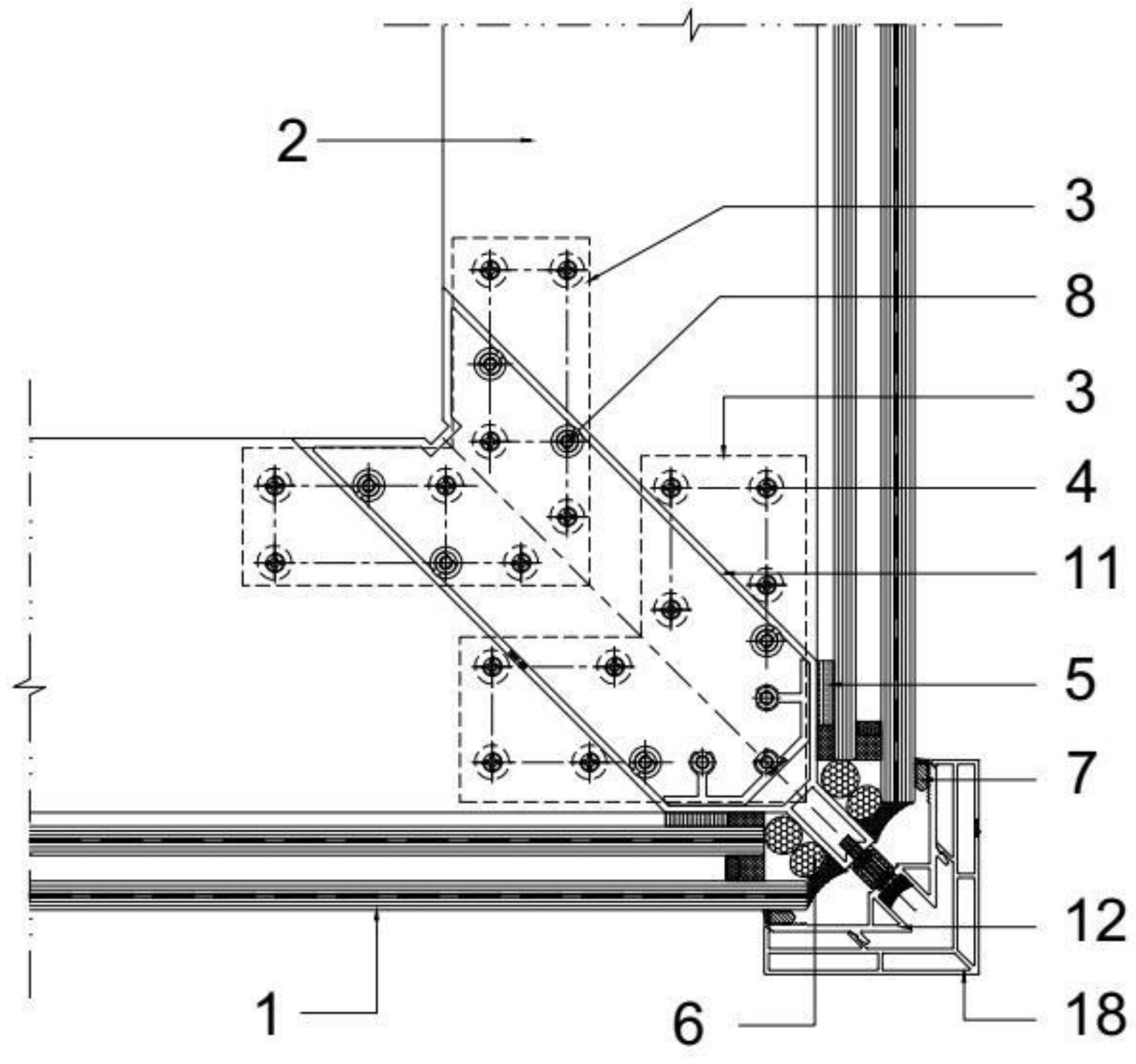
一种常见的优化方案是采用“专用铝合金阳角转接件 + 单元板块挂接系统”。其核心构成与工作原理如下:

  • 阳角专用转接件:这是一个特制的L形或V形铝合金构件,预先固定在主体结构(如预埋件、转接钢架)的阳角位置。它集成了承重挂钩槽、横向限位块以及密封胶条安装槽,是连接系统的“基座”。
  • 单元板块挂接设计:相邻两块在阳角交汇的单元板块,其内侧框架上对应设置有挂钩(通常为上挂点)和承重垫块。安装时,先将一侧板块的挂钩挂入转接件的上部槽口,初步承载自重;然后将另一侧板块以同样方式挂入,并通过横向连接件(如螺栓或插芯)将两块板块在转角处相互拉紧,并与转接件固定,形成整体。
  • 多层次密封系统:在板块与转接件之间、两块板块的拼接缝处,设置多道三元乙丙(EPDM)胶条进行初步密封。在室外侧的装饰接缝处施打耐候密封胶,形成最后一道防水屏障。转接件内部设计有导排水路径,确保可能渗入的少量水汽能被顺利排出。
  • 三维调节机制:转接件与主体结构的连接通常采用长圆孔螺栓连接,实现左右、进出方向的调节。单元板块挂钩与槽口的配合间隙,以及垫片的使用,可实现上下方向的调节。

三、 安装工艺流程与质量控制要点

科学严谨的安装是设计意图得以实现的保证。主要流程与要点包括:

  1. 测量放线与复核:精确测设主体结构阳角处的三维控制线,复核预埋件或转接系统位置,为转接件安装提供基准。
  2. 阳角转接件安装:依据控制线安装并初步固定转接件,利用调节螺栓进行精确定位,确保所有转接件共面且角度准确,然后完全紧固。
  3. 单元板块吊装与就位:使用专用吊具,将单元板块平稳运至安装位置。通常采用“先下后上、先角后边”的顺序。对于阳角板块,操作人员需协调配合,先将一侧挂钩准确挂入,再引导另一侧就位。
  4. 连接固定与调整:挂接完成后,立即安装横向连接件,将相邻板块与转接件紧固。使用靠尺、水准仪等工具检查板块的平整度、垂直度及缝宽,利用调节系统进行微调至符合设计要求。
  5. 密封处理:在确保连接牢固、位置正确后,进行接缝的清洁、涂刷底漆、填充泡沫棒等工序,最后由专业技工施打耐候密封胶,保证胶缝饱满、平滑、连续。
  6. 检查与验收:每完成一个阳角单元,需进行专项检查,包括观感质量、安装偏差、连接紧固度以及密封完整性等,并做好过程记录。

四、

节能幕墙阳角单元板块的连接结构,是力学、热工学、材料学与施工工艺的综合体现。一个精心设计、精准安装的连接节点,不仅能有力保障幕墙系统的安全耐久与高效节能,更能成就建筑立面干净利落的几何美感。随着模块化、装配化建造技术的发展,对连接结构的可靠性、便捷性和智能化提出了更高要求,持续创新与精细化实践将是推动幕墙行业进步的关键动力。


如若转载,请注明出处:http://www.yaodoubiao.com/product/31.html

更新时间:2026-04-10 05:26:12