公司简介
COMPANY

----------------

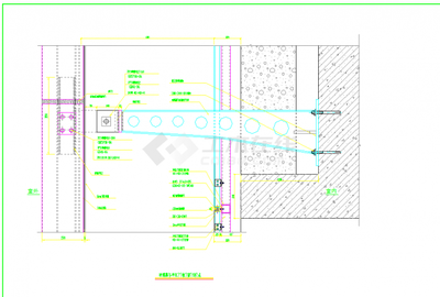
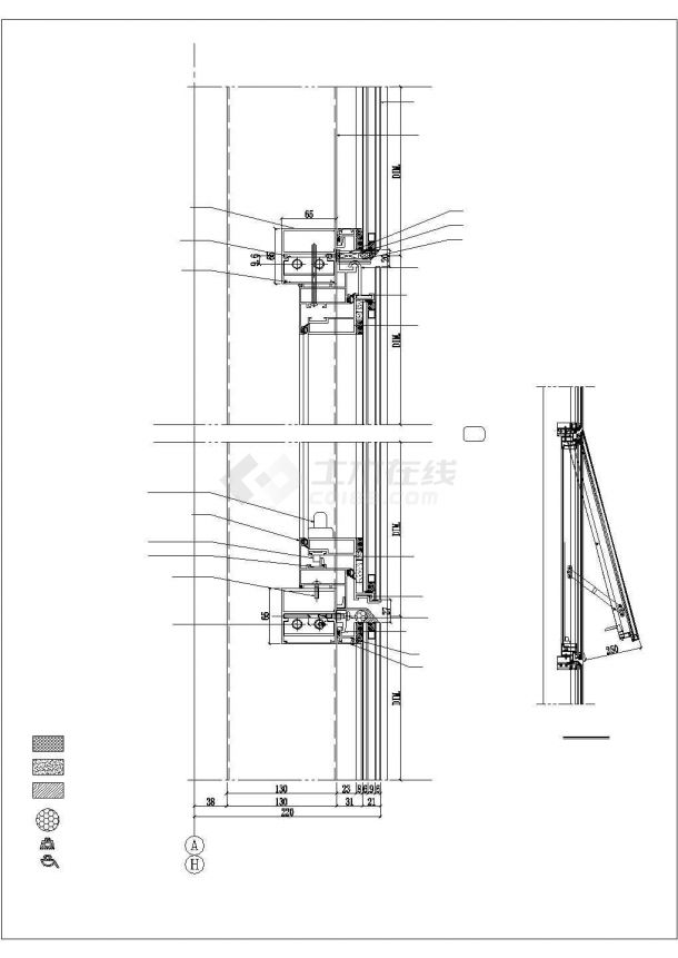
建筑玻璃幕墙设计与安装施工工艺详解

-

企业信息
Information

----------------

公司名称:河南特固金属材料有限公司

法人代表:邓瑞洁

注册地址:河南省郑州市中原区桐柏路街道电厂南路46号7号楼1401

所属行业:金属制品业

更多行业:建筑装饰及水暖管道零件制造,建筑、安全用金属制品制造,金属制品业,制造业

经营范围:建筑幕墙设计及安装;销售:建筑装饰材料,金属材料,金属制品,门窗制品。